Помещение сдано
Офисы 103 м²
206 000 ₽/мес.
2 000 ₽ за м²
4 комнаты | 3 этаж
Ленинградский проспект, 80к21
Карта
Панорама
Аренда Офиса 103м² на ул. Ленинградский проспект 80к21
№ 636
Площадь:
103 м²
206 000 ₽
2 000 ₽ за м²
в месяц
Дмитрий
+7 (905) 665-54-84
Написать сообщение
Предложить свою цену
Адрес
Москва, Сокол р-н, Ленинградский проспект, 80к21
Этаж
3
Комнаты
4
Отделный вход
Охрана
Парковка: есть
Кондиционер
Часы работы 24
С учётом НДС
Высота потолков: 4
Есть подъезд фуры
Мощность сети 15 кВт
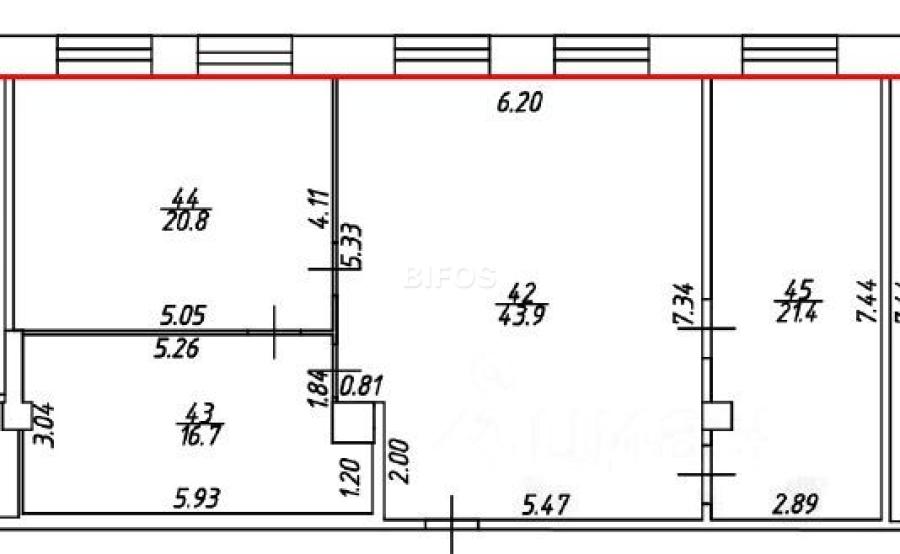
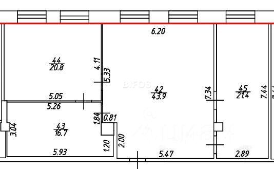
Аренда офиса 103 кв. Ленинградский просп., 80к21, 7 мин от м. Сокол.
3 этаж, офисный блок смешанной планировки.
Скс разводка, приточно-вытяжная вентиляция, пожарная сигнализация.
На территории есть платный паркинг. Доступ 24-7.
Площадь 103 кв.м. 206 000 руб. в мес. с НДС, отдельно коммунальные.
3 этаж, офисный блок смешанной планировки.
Скс разводка, приточно-вытяжная вентиляция, пожарная сигнализация.
На территории есть платный паркинг. Доступ 24-7.
Площадь 103 кв.м. 206 000 руб. в мес. с НДС, отдельно коммунальные.
Помещения в этом здании
Подписаться на новые объекты в этом здании
Похожие объекты
Офисы
В жилом доме
206 000 ₽/мес.
2 000 ₽ за м²
Площадь
103 м²

Кунцево р-н, Оршанская, 5
Офисы
В жилом доме
202 000 ₽/мес.
1 961 ₽ за м²
Площадь
103 м²

Филёвский Парк р-н, Барклая, 6с5
Офисы
В жилом доме
202 000 ₽/мес.
2 000 ₽ за м²
Площадь
101 м²

Дорогомилово р-н, площадь Европы, 2
Поиск других помещений
69