Помещение сдано
Офисы 92 м²
230 000 ₽/мес.
2 500 ₽ за м²
4 комнаты | 6 этаж
Ленинградский проспект, 80к37
Карта
Панорама
Аренда Офиса 92м² на ул. Ленинградский проспект 80к37
№ 639
Площадь:
92 м²
230 000 ₽
2 500 ₽ за м²
в месяц
Дмитрий
+7 (905) 665-54-84
Написать сообщение
Предложить свою цену
Адрес
Москва, Сокол р-н, Ленинградский проспект, 80к37
Этаж
6
Комнаты
4
Отделный вход
Охрана
Парковка: есть
Кондиционер
Часы работы 24
С учётом НДС
Высота потолков: 4
Есть подъезд фуры
Мощность сети 15 кВт
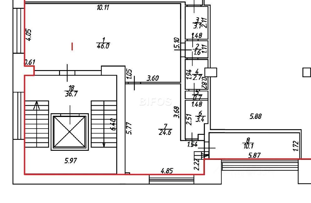
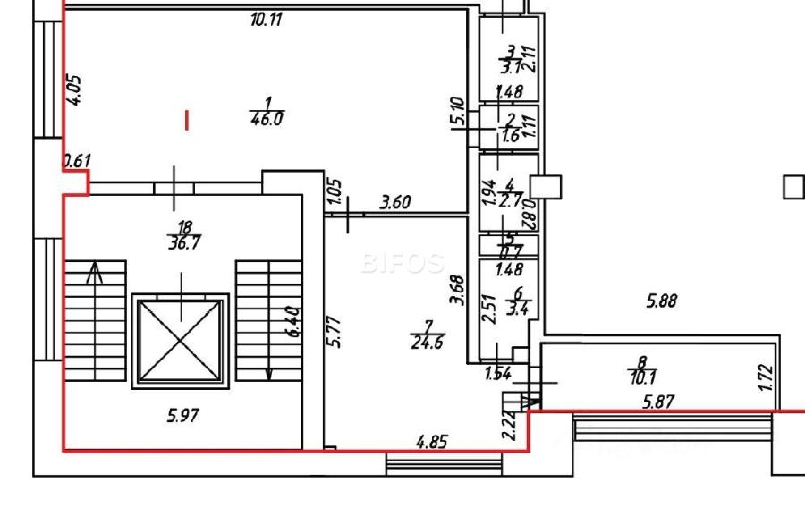
Аренда офиса 92 кв. Ленинградский просп., 80к37, 7 мин от м. Сокол.
6 этаж, офисный блок смешанной планировки, свой с/у.
Скс разводка, приточно-вытяжная вентиляция, пожарная сигнализация. Кодниционирование.
На территории есть платный паркинг. (12.000р/мес). Доступ 24-7.
Площадь 92 кв.м. 230 000 руб. в мес. с НДС (22%), отдельно коммунальные.
6 этаж, офисный блок смешанной планировки, свой с/у.
Скс разводка, приточно-вытяжная вентиляция, пожарная сигнализация. Кодниционирование.
На территории есть платный паркинг. (12.000р/мес). Доступ 24-7.
Площадь 92 кв.м. 230 000 руб. в мес. с НДС (22%), отдельно коммунальные.
Помещения в этом здании
Подписаться на новые объекты в этом здании
Похожие объекты
Офисы
В жилом доме
236 000 ₽/мес.
2 538 ₽ за м²
Площадь
93 м²

Басманный р-н, Покровский бульвар, 8с1
Офисы
В жилом доме
225 000 ₽/мес.
2 500 ₽ за м²
Площадь
90 м²

Замоскворечье р-н, Новокузнецкая, 1с1
Поиск других помещений
71