BIFOS
Коммерческая недвижимость
BIFOS
< Назад к объектам
Склад и производство 236 м²
354 000 ₽/мес.
1 500 ₽ за м²
2 комнаты | 1 этаж
Веткина, 2с16
Карта
Панорама

Аренда Склада 236м² на ул. Веткина 2с16

№ 670
Площадь:
236 м²
354 000
1 500 ₽ за м²
в месяц
Дмитрий
+7 (905) 665-54-84
Написать сообщение
Адрес
Москва, Марьина Роща р-н, Веткина, 2с16
Этаж
1
Комнаты
2
С учётом НДС
Высота потолков: 5
Теплое помещение
Мощность сети 15 кВт
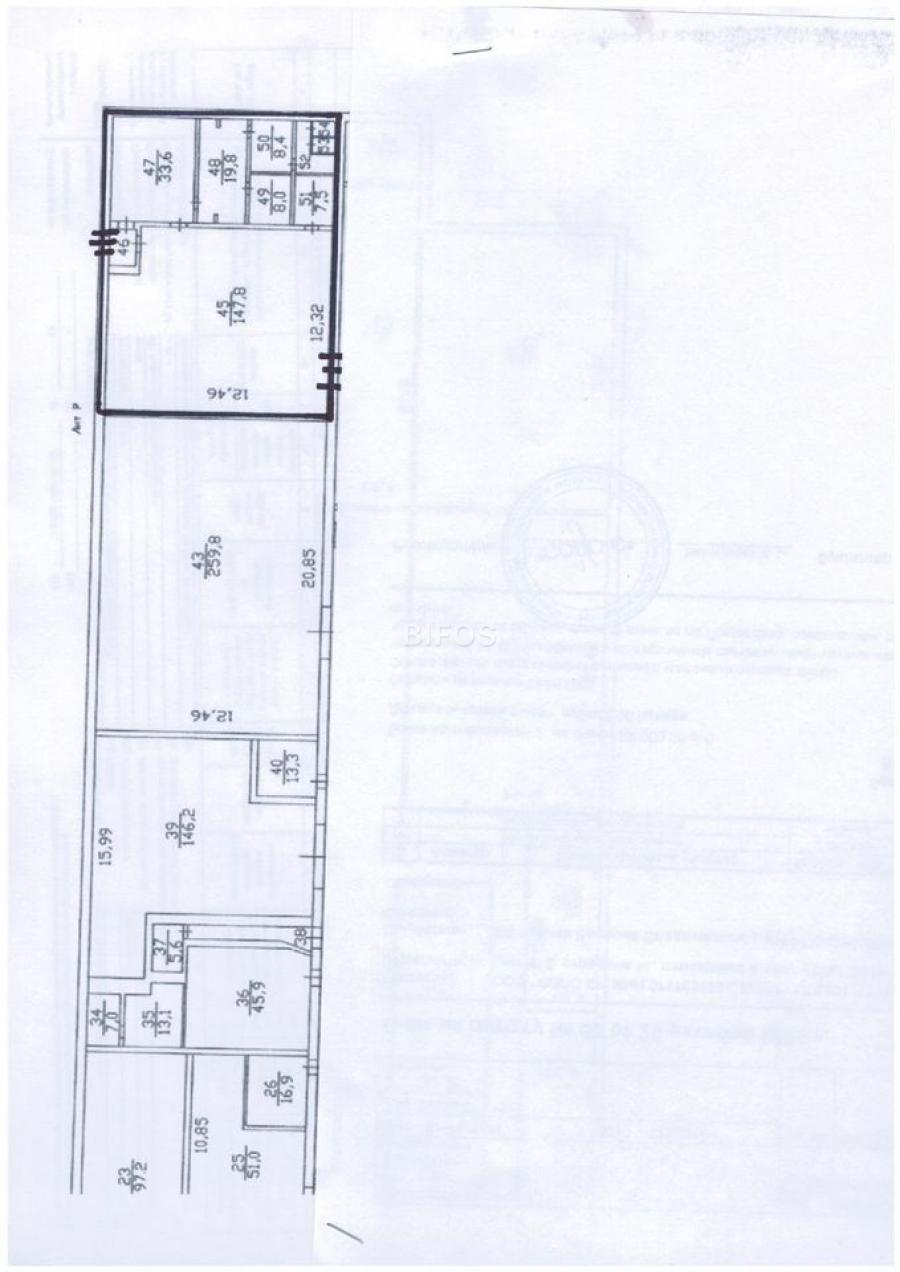
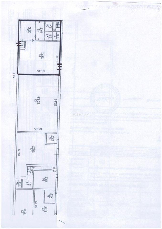
Аренда теплого склада-производства 236 кв.м. ул Веткина 2 стр 16, Марьина Роща.
Ворота на рампе, с другой стороны широкая дверь на нулевой отметке.
Смешанная планировка, основной зал + офисы и свой сан-узел.
Высота потоков 5м, 15 кВт, отопительный котел.
Круглосуточная охрана. Есть платная парковка.

Площадь 236 кв.м. 354 000 рублей в мес., с НДС, отдельно коммунальные.
Помещения в этом здании
Подписаться на новые объекты в этом здании
Похожие объекты
Склад и производство
В жилом доме
354 000 ₽/мес.
1 500 ₽ за м²
Площадь
236 м²
Марьина Роща р-н, Веткина, 2с16
Поиск других помещений
6
С учётом НДС
Теплое помещение
Мощность сети 15 кВт
Описание
Аренда теплого склада-производства 236 кв.м. ул Веткина 2 стр 16, Марьина Роща.
Ворота на рампе, с другой стороны широкая дверь на нулевой отметке.
Смешанная планировка, основной зал + офисы и свой сан-узел.
Высота потоков 5м, 15 кВт, отопительный котел.
Круглосуточная охрана. Есть платная парковка.

Площадь 236 кв.м. 354 000 рублей в мес., с НДС, отдельно коммунальные.
Дмитрий
+7 (905) 665-54-84
Позонить
Помещения в одном здании

Площадь и цена:
236м² | 354000₽ (1 500₽ за м²)
Адрес:
Москва, Марьина Роща р-н, Веткина, 2с16
Этаж | комнат:
1 | 2
Параметры:
С учётом НДС
Теплое помещение
Мощность сети 15 кВт
Описание:
Аренда теплого склада-производства 236 кв.м. ул Веткина 2 стр 16, Марьина Роща.
Ворота на рампе, с другой стороны широкая дверь на нулевой отметке.
Смешанная планировка, основной зал + офисы и свой сан-узел.
Высота потоков 5м, 15 кВт, отопительный котел.
Круглосуточная охрана. Есть платная парковка.

Площадь 236 кв.м. 354 000 рублей в мес., с НДС, отдельно коммунальные.

Менеджер:
Дмитрий +7 (905) 665-54-84

Предложите свою цену
Заказать подборку помещений
Сообщение
Отправить
Стоимость 354 000 ₽ в месяц
Отправить
Регистрация
Войти
Забыл свой пароль?
Зарегистрироваться
Забыл свой пароль?
В скоре Вам придет сообщение с паролем и логином для авторизации.
Забыл свой пароль?
Восстонавление пароля
Восстановить пароль
Вы не авторизованы
Войти